Automotive & Freight:

Know-how is key to streamlining the process

Automotive & Freight:

Know-how is key to streamlining the process

Automotive and freight operations present their own particular sets of challenges and opportunities, which can only be understood through experience.

We have built up a strong body of expertise providing planning, design and engineering services on a broad range of projects in Victoria and interstate.

They include diverse facilities such as workshops, hardstands, wash bays, service pits, storage facilities, cool rooms, loading bays, car stackers, petrol bowsers and drivers’ quarters.

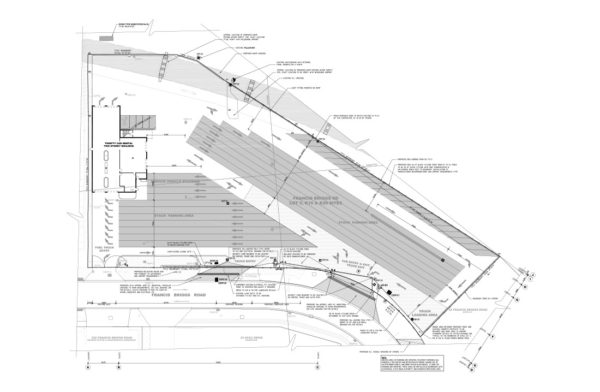
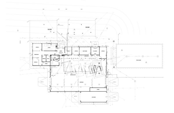
Bunker Freight Lines:

Now known as Redstar Transport, this company provides freight services around Australia. At their Victorian base in Derrimut we designed specialised facilities for their fleet of prime movers and trailers, ranging from workshops to wash bays. We also designed their transport marshalling yard in Dubbo, NSW.

Bunker Freight Lines:

Now known as Redstar Transport, this company provides freight services around Australia. At their Victorian base in Derrimut we designed specialised facilities for their fleet of prime movers and trailers, ranging from workshops to wash bays. We also designed their transport marshalling yard in Dubbo, NSW.

Collins Transport:

This Adelaide-based business specialises in the transport and storage of refrigerated and frozen produce. Needing a depot in Melbourne, they engaged us to design an 8000 m2 warehouse, 3000m2 cool rooms, 8000m2 hardstand, loading bays, dock levellers, wash bays, petrol bowsers, offices and drivers’ quarters.

Europcar:

This international vehicle rental firm appointed us to design their car-stacking operations, offices and workshops at Melbourne and Brisbane Airports and, importantly, to manage the complex airport approvals and permit process. We met the challenge of providing secure facilities and maximising the amount of cars held on site.

Avis:

Europcar:

This international vehicle rental firm appointed us to design their car-stacking operations, offices and workshops at Melbourne and Brisbane Airports and, importantly, to manage the complex airport approvals and permit process. We met the challenge of providing secure facilities and maximising the amount of cars held on site.

Avis:

Thrifty:

For this national operator of vehicle rentals we designed a new car-stacking yard and offloading area at Melbourne Airport, including extending and rearranging the existing facility to provide secure entry and exit points for heavy vehicle transporters while maximising the number of cars stacked on site.

Avis:

At Melbourne Airport this prominent car rental brand needed to provide more adequate premises for their expanding workforce, and sought a quick solution. We were selected to design and engineer the infrastructure to support large temporary offices, which were constructed adjacent to their existing workplace.

Avis:

At Melbourne Airport this prominent car rental brand needed to provide more adequate premises for their expanding workforce, and sought a quick solution. We were selected to design and engineer the infrastructure to support large temporary offices, which were constructed adjacent to their existing workplace.

Victorian Taxi Association:

The Association is the peak industry body representing Victorian taxi operators. When planning new facilities at Melbourne Airport they were faced with a raft of challenges. We were engaged to assess the situation and meet their operational needs with a suitable design for offices, amenities, inspection areas and parking.

We have built up a strong body of expertise providing planning, design and engineering services on a broad range of projects in Victoria and interstate.
Barry O’Donohue
Senior Structural Engineer

Get In Touch:

For more information please contact us directly or complete and submit this form and we’ll get back to you shortly.

Stavros Rekaris:
0412 108 586